BABOSCH Motor Yacht for Charter
Specifications
Built / Refit
2014
Builder
FETHIYE SHIPYARD
Base Port
Fethiye
Length
20.0 m / 66.0 ft
Beam
5.8 m / 19 ft
Draft
1.5 m / 5 ft
Speed
11-15 Knots
Main Engine(s)
2 x 450 HP IVECO
Generator(s)
22 Kw , 11 Kw
Hull
Epoxy Laminated Wood
Fuel Capacity
4,000 LT~
Water Capacity
6,000 LT~
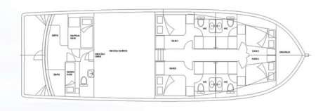
Accommodation
Cabins
4 Double
Guests
8
Crew
3
Bathroom
Ensuite with shower cells
Toilet type
Electric vacuum flush
Air-conditioning
Yes
A/C Use during night
All night
TV System
In salon and all cabins
Music System
In salon, All cabins, Deck speakers
Tenders & Toys
Tenders
3,5 Mt Tender with 9,9 Hp Outboard
Deck Equipment
Snorkelling equipment, Fishing tackle, Sun awnings, Sun mattresses, Deck shower, Sea ladder
Destinations & Prices
Cruising Areas
Turkey
Charter Prices
€6,300 per week (Low Season: May, October)
€7,700 per week (Mid Season: June, September)
€12,600 per week (High Season: July, August)
Charter Terms
Prices includes; Fuel for the yacht, Crew Wages, Insurance, Turkish harbour fees, Airport transfers
Prices excludes; VAT tax, food and drinks €60 - €100 per person per day will be charged for FULL BOARD meals and soft drinks, other Alcoholic drinks and wines will be charged per bottle at supermarket price. You can also bring your favorite spirits
Crew's Gratuity is extra and usualy 5-10 % of the Charter Fee.












